+ 10 NĂM KINH NHIỆM, TRIỂN KHAI HƠN 1000 CÔNG TRÌNH TẠI HÀ NỘI
+ QUY TRÌNH TƯ VẤN- THIẾT KẾ - THI CÔNG CHUẨN CHẤT LƯỢNG
+ ĐỘI NGŨ KHẢO SÁT, THIẾT KẾ, THI CÔNG CHUYÊN NGHIỆP
+ KĨ SƯ LÊN PHƯƠNG ÁN THI CÔNG VÀ DỰ TOÁN NHANH CHÓNG
+ CAM KẾT TIẾN ĐỘ THI CÔNG, BẢO HÀNH SIÊU TỐC
ĐẾN VỚI TRƯỜNG SINH, BẠN SẼ NHẬN ĐƯỢC:
+ SỰ HỢP TÁC BỀN VỮNG.
+ HỖ TRỢ XIN CẤP PHÉP XÂY DỰNG.
+ TIẾT KIỆM 20% CHI PHÍ KHI ĐẾN VỚI TRƯỜNG SINH
+ GIÁM SÁT CÔNG TRÌNH 24/24
+ LUÔN SÁT CÁNH CÙNG CHỦ NHÀ LỰA CHỌN VẬT LIỆU HOÀN THIỆN ƯNG Ý NHẤT
+ CHỦ NHÀ YÊN TÂM LÀM CÔNG VIỆC CỦA MÌNH
TRƯỜNG SINH TƯ VẤN- THIẾT KẾ THI CÔNG XÂY MỚI, SỬA NHÀ TRỌN GÓI CHÌA KHÓA TRAO TAY.
Chiêm ngưỡng mẫu nhà biệt thự 2 tầng mái Nhật có gara ô tô
Chiêm ngưỡng mẫu nhà biệt thự 2 tầng mái Nhật có gara ô tô
Cập nhật ngày 2025/Sep/Thu
Mẫu nhà biệt thự 2 tầng mái Nhật có gara ô tô

Mẫu nhà mái Nhật có độ dốc vừa phải tạo cảm giác thanh thoát và hiện đại, vừa chống nóng, thoát nước mưa nhanh, phù hợp với khí hậu Việt Nam. Ngôi nhà này với tông màu chủ đạo là trắng kêm và xám nhạt, kết hợp với các đường kẻ ngang màu nâu sẫm càng làm nổi bật các khối kiến trúc giúp tạo điểm nhấn sang trọng cho ngôi nhà.
Phần mặt tiền được thiết kế tinh giản, sử dụng gam màu trắng sáng chủ đạo kết hợp cùng hệ cửa kính lớn, mang đến vẻ đẹp thanh thoát, sang trọng. Các cửa sổ và cửa ra vào đều sử dụng khung nhôm màu đen hoặc xám đậm, tạo sự tương phản đẹp mắt với màu tường.
Ban công tầng 2 rộng rãi, lan can kính tạo cảm giác thoáng đãng và giúp ánh sáng tự nhiên tràn ngập vào bên trong. Gara ô tô được bố trí ngay mặt tiền tầng 1 có mái che rộng rãi, đủ chỗ cho 2 xe ô tô, thuận tiện cho việc di chuyển hàng ngày của gia đình. Ngoài ra, phía trước nhà có một khoảng sân nhỏ được lát gạch và trồng cỏ xanh, tạo không gian thư thái cho cả gia đình.
Đặc biệt, hệ thống đèn tường được bố trí tinh tế hai bên cửa chính và gara, giúp đảm bảo ánh sáng an toàn khi di chuyển cho các thành viên, vừa tôn lên vẻ đẹp sang trọng của ngôi nhà vào buổi tối. Hệ thống đèn này không chỉ chiếu sáng lối đi, mà còn biến ngôi nhà trở thành điểm nhấn nổi bật giữa không gian xung quanh.
Xem thêm: Thiết kế nhà 2 tầng 60m2 (4x15m) đẹp, đầy đủ bản vẽ chi tiết
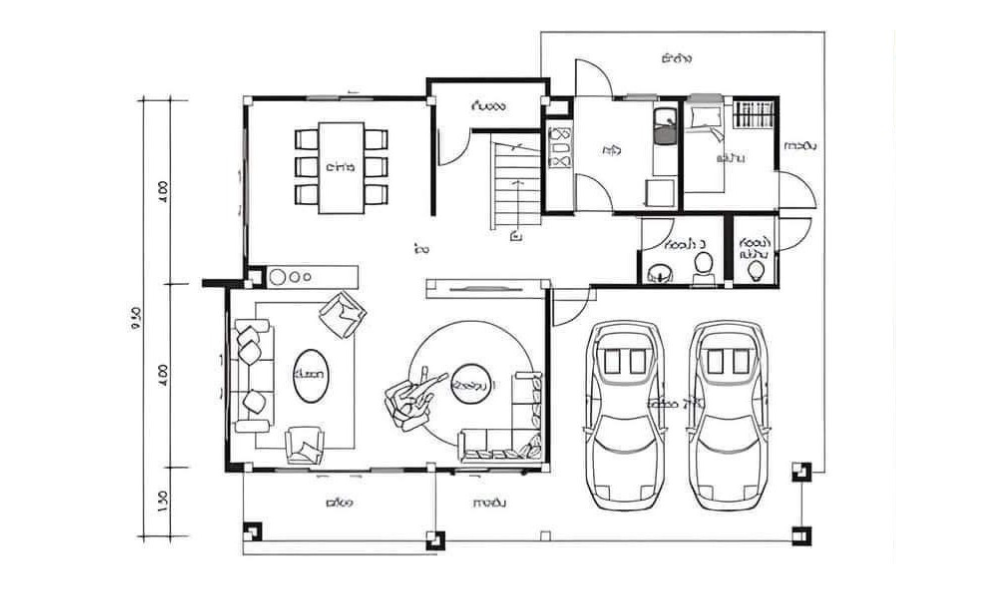
Mặt bằng công năng mẫu biệt thự 2 tầng mái Nhật có gara ô tô
Thiết kế ngôi nhà chú trọng sự tiện nghi và tối ưu không gian. Hãy cùng xem cách bố trí mặt bằng tầng 1 và tầng 2 để hiểu rõ hơn
Thiết kế mặt bằng tầng 1

Từ cửa chính bước vào là không gian phòng khách rộng rãi, sử dụng gam màu sáng chủ đạo, kết hợp hệ cửa kính lớn giúp đón ánh sáng tự nhiên tốt nhất cho căn phòng. Thiết kế liên thông với phòng ăn và bếp tạo cảm giác thông thoáng, liền mạch, giúp các thành viên dễ dàng gắn kết.
Ngay tại tầng 1 còn được bố trí thêm 1 phòng ngủ thích hợp để người lớn tuổi trong gia đình sử dụng, ngoài ra bạn cũng có thể sử dụng như 1 phòng ngủ phụ để khách đến thăm có thể ngủ lại mà vẫn đảm bảo sự riêng tư cho gia chủ.
Khu vực ăn nối liền với bếp cùng hệ tủ bếp chữ L giúp tối ưu diện tích, tăng công năng sử dụng mà vẫn đảm bảo được thẩm mỹ cho căn phòng. Không gian bếp được thiết kế mở, gần cửa sổ lớn để khử mùi hiệu quả và luôn thoáng đãng. Nhà vệ sinh chung được đặt cuối nhà vừa đảm bảo sạch sẽ riêng tư mà vẫn thuận tiện cho mọi thành viên và khách sử dụng.
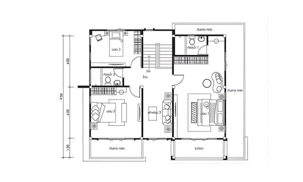
Mặt bằng công năng tầng 2

Tầng 2 được bố trí 1 phòng ngủ master Rộng rãi, có nhà vệ sinh khép kín. Đặc biệt nó còn có ban công thoáng đãng, mang lại không gian nghỉ ngơi sang trọng, chuẩn resort ngay trong chính ngôi nhà. Bên cạnh đó tầng 2 còn được bố trí 2 phòng ngủ nhỏ, đều có cửa sổ lớn đón ánh sáng tự nhiên và gió trời, giúp không gian luôn trong lành, thoáng mát.
Ngoài ra, tầng này còn được bố trí thêm 1 phòng sinh hoạt chung nằm ở trung tâm, đây là nơi gia đình dễ dàng quây quần, trò chuyện, xem phim hoặc thư giãn sau một ngày làm việc. Ngoài ra, bạn cũng có thể thay thế không gian này thành phòng thờ giúp việc thờ cúng được trang nghiêm, tránh ảnh hưởng bởi sinh hoạt hằng ngày ở tầng 1.
Tầng 2 cũng được bố trí thêm 1 nhà vệ sinh chung đặt ở giữa 2 phòng ngủ nhỏ. Vị trí này giúp việc di chuyển dễ dàng, đảm bảo sự thuận tiện cho các thành viên sử dụng. Nhà vệ sinh được thiết kế hiện đại, thông thoáng, trang bị đầy đủ tiện nghi, vừa đáp ứng công năng vừa giữ cho không gian luôn sạch sẽ.
Trường Sinh vừa giới thiệu đến bạn mẫu biệt thự 2 tầng mái Nhật có gara ô tô. Thiết kế này được yêu thích bởi vẻ đẹp hiện đại và tinh tế mà vẫn đảm bảo công năng khoa học đáp ứng đầy đủ yêu cầu về nhu cầu sinh hoạt của mọi gia đình Việt. Có thể nói đây là lựa chọn lý tưởng cho những gia đình muốn sở hữu một ngôi nhà vừa sang trọng mà vẫn đảm bảo tính thẩm mỹ lâu dài.
Bài viết liên quan
Công ty sửa nhà uy tín tại Hà Nội
Thực tế thi công các công trình xây nhà trọn gói của Xây Dựng Trường Sinh
Hợp đồng thi công xây nhà trọn gói năm 2025 [ Xây dựng Trương Sinh ]
Thiết kế nhà 2 tầng 60m2 (4x15m) đẹp, đầy đủ bản vẽ chi tiết
99+ Mẫu thiết kế nhà 2 tầng 4 phòng ngủ đẹp, sang trọng, đẳng cấp
[Tổng hợp] 20+ Mẫu thiết kế nhà 3 gian 2 tầng hiện đại, phù hợp xu hướng
Sửa nhà vệ sinh chung cư | Chi phí thi công và những điều cần lưu ý
5 điều cần lưu ý khi sử dụng dịch vụ sửa nhà trọn gói
Dự đoán ngành sắt năm tới biến động như nào?
Thiết kế và thi công xây nhà trọn gói phố Quan Hoa, Cầu Giấy, Hà Nội
Based on





